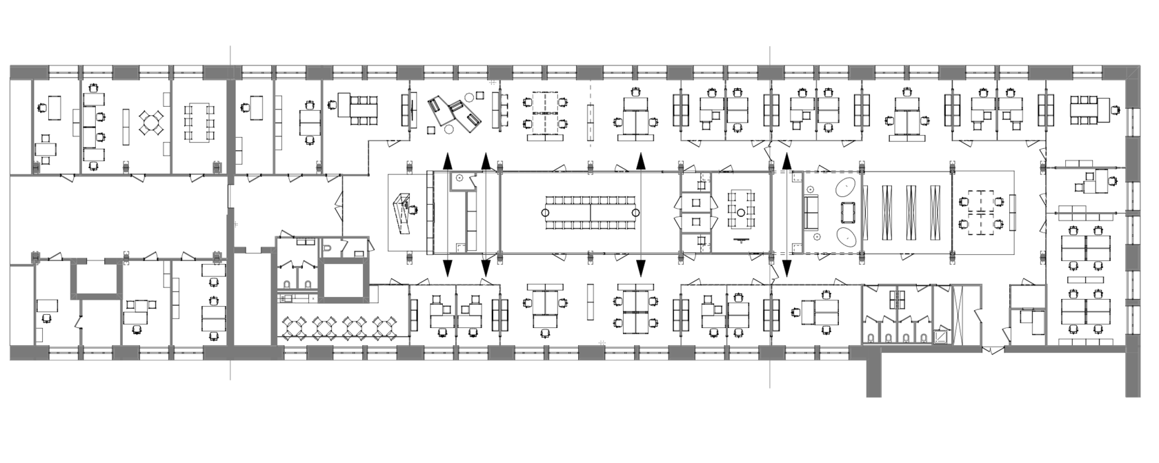
Помещения должно было включать в себя и офисные закрытые ячейки и openspeace пространство. А так же переговорные, комнату отдыха, архивы.
Административный сектор
Офисный сектор
Закрытый административный сектор
офис Raum Buffer-7 / Проект офисного помещения компании RAUM. 20 отделов, закрытые ячейки, openspace пространство, переговорные, комната отдыха, архивы.
архитектурная студия snegiri частная архитектура
Перед командой стояла задача разместить на 1200м кв бывшего производства светотехнической фабрики офис из 20 отделов, так чтобы связь между ними была неприрывная.
Административный
сектор
Офисный сектор
Закрытый административный
сектор